Stephanie Haas
Refine Search

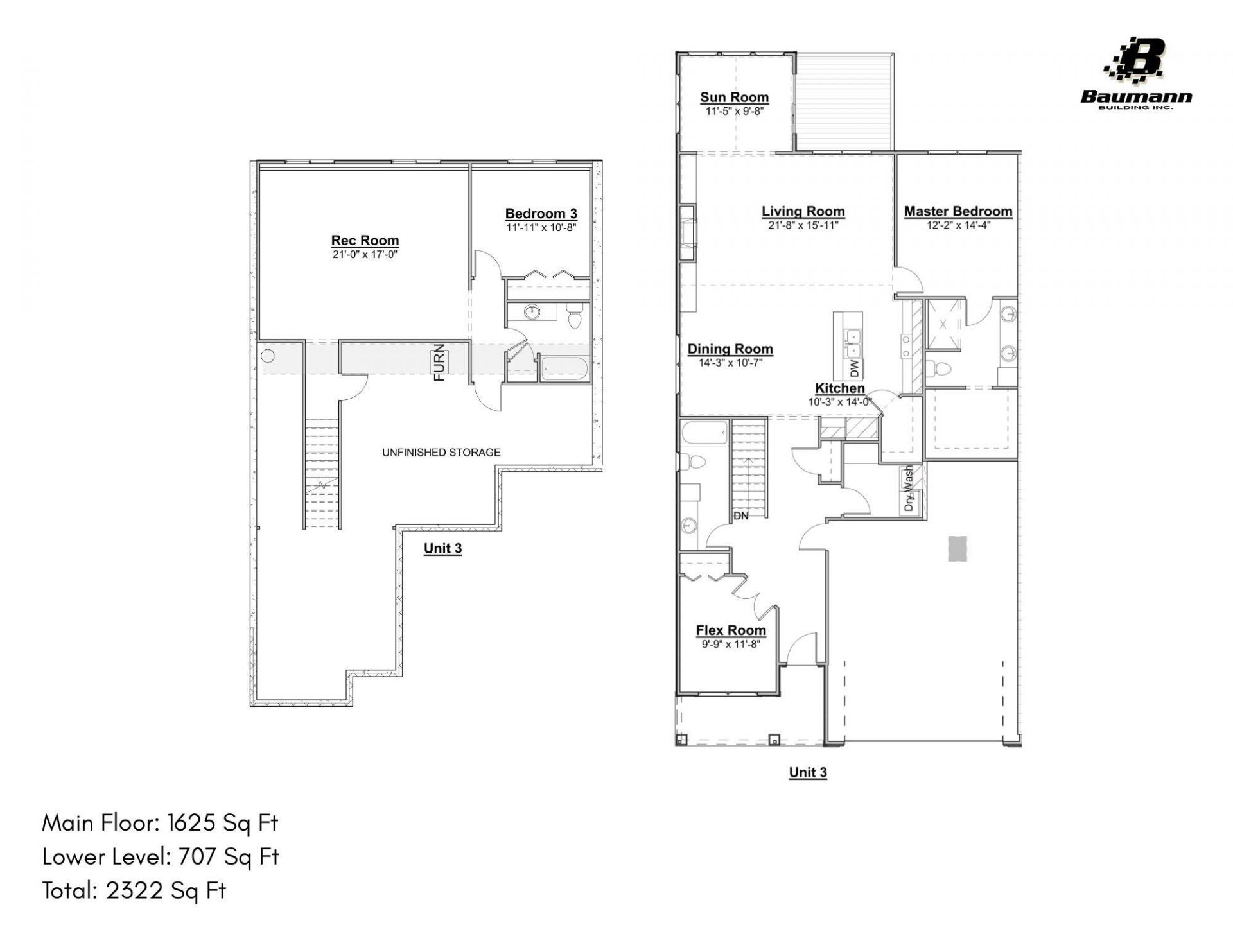
1621 Eagle View Trail, Unit Lot 3, Zeeland, MI 49464

$504,900
  • 1621 Eagle View Trail, Unit Lot 3, Zeeland, MI 49464 Main Photo

10 Total Photos [Click to View All]

New to the Market Active
BEDS3 BATHS3 full SQUARE FEET2,212 MLS#26017883
STATUSActive PROPERTY TYPEResidential - Condominium SUBDIVISIONEagle Meadows SCHOOLZeeland

Property Description

Welcome to Eagle Meadows, Baumann Buildings newest condominium community in Zeeland right off of Perry Street. This beautiful unit features 2 beds and 2 baths on the main floor, and another bedroom and full bathroom on the lower level. The main floor includes a primary suite with dual sinks and a spacious walk-in closet, as well as an open concept kitchen, dining area, featuring a sun room and a large living room with a cathedral ceiling. Off the living room you will find a slider door leading to a nice composite deck. This is your chance to own a unit in this brand new community! Eagle Meadows is ready and waiting to welcome you home. One or more of the selling party is/are a licensed Michigan realtor

1621 Eagle View Trail, Unit Lot 3 | MLS# 26017883

This condo located at 1621 Eagle View Trail, Unit Lot 3, Zeeland, MI 49464 is currently listed for sale with an asking price of $504,900. This property was built in 2026 and has 3 bedrooms and 3 full baths with 2212 sq. ft. Eagle View Trail, Unit Lot 3 is located in the Eagle Meadows subdivision within the Zeeland school district. Search Eagle Meadows real estate on stephaniehaas.ikeyrealty.com today.

Property Features

Property Type: Residential - Condominium
Basement: Daylight, Full
Cooling: Central Air
Fireplaces: 1
Garage: 2 car attached
Heating: Forced Air
Home Style: Ranch
Roof Type: Shingle
Taxes: $0
Year Built: 2026

Feature Descriptions

Appliances: Dishwasher, Microwave, Range, Refrigerator
Association Fee Includes: Water, Trash, Sewer, Lawn/Yard Care
Exterior: Vinyl Siding
Fireplace: Gas Log, Living Room
Fireplace Y/N: Yes
HOA: Yes
HOA Fee: 250/Monthly
Interior: Center Island, Pantry
Lake Name: Pond
Laundry: Laundry Room, Main Level
Parcel Number: 70-16-24-300-038
Parking: Garage Door Opener, Attached
Patio/Porch: Deck, Porch(es)
Rooms Total: 6
Sewer: Public
Sub Type: Condominium
Water: Public
Waterfront: Pond
Window: Screens, Insulated Windows

Local Schools

School District: Zeeland

Listed By / Shown By

Listed By

Agency Name: West Edge Real Estate LLC
Agency Phone: 616-355-3737
Agent Name: Brad VanderZwaag

agent picture

Shown By

Agent Name: Stephanie Haas
Agent Phone: (567) 312-3806
Agency Title: Key Realty

IDX logoThe property comes from the Member MLS's of the Michigan Regional Information Center, LLC (MichRIC). Copyright 2026 Michigan Regional Information Center, LLC (MichRIC). All rights reserved. Information deemed reliable, but not guaranteed. Data Last Updated 04/24/2026.

Estimate Your Payment

Estimated Payment

$ 2,971.53 per month $2,824.27 Principal & Interest $0.00 Property Tax (data not provided by mls) $147.26 Homeowner's Insurance

Change Payment Information

%
years/fixed
yearly
yearly (est.)
(Payments are an estimate and may vary by lender)

Login to My Homefinder

Pixel